-—- || SAMPSON ISAFI || -—-

~CONSTRUCTION DOCUMENTS~

-2023-

BACKGROUND:

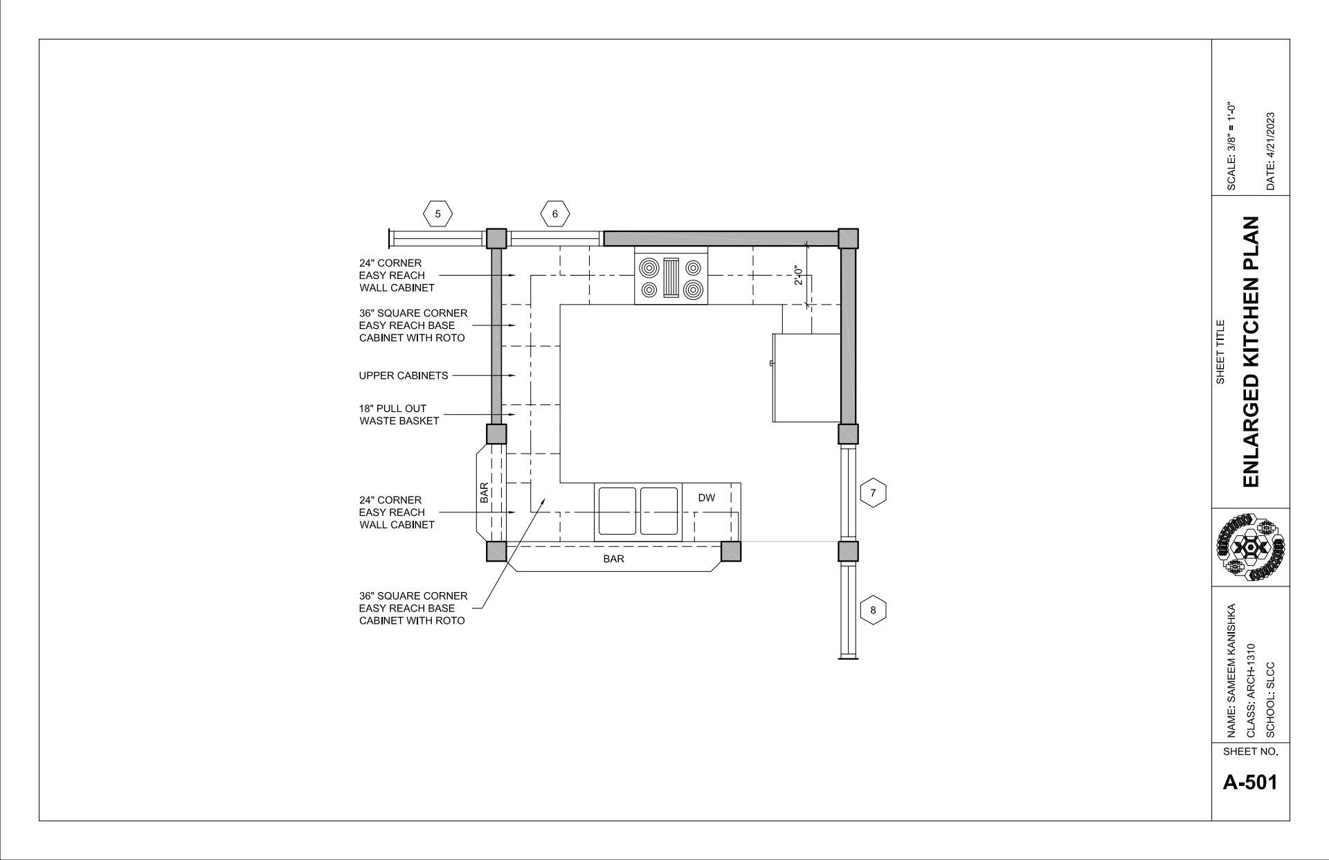
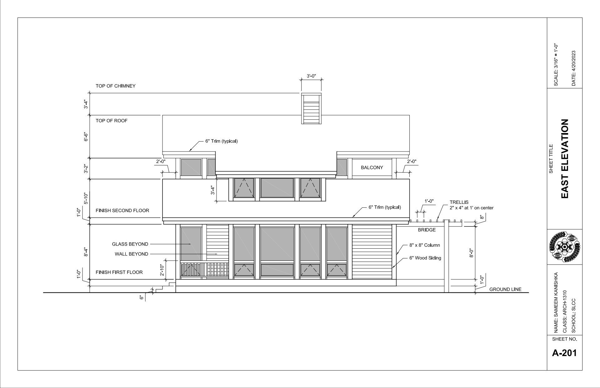
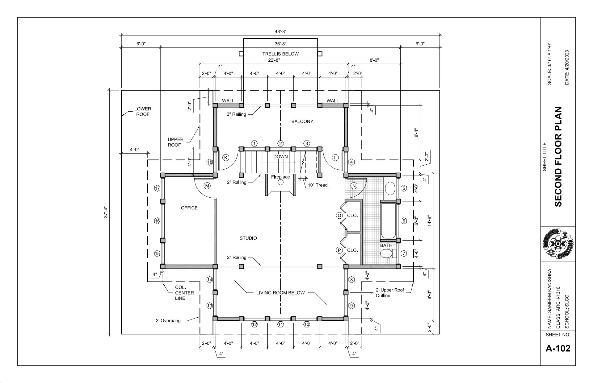
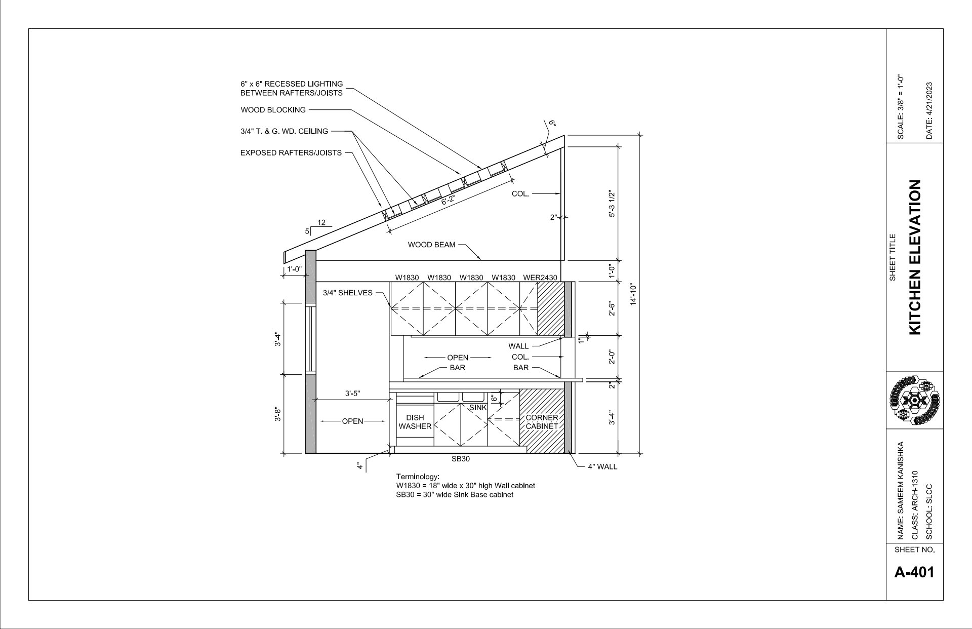
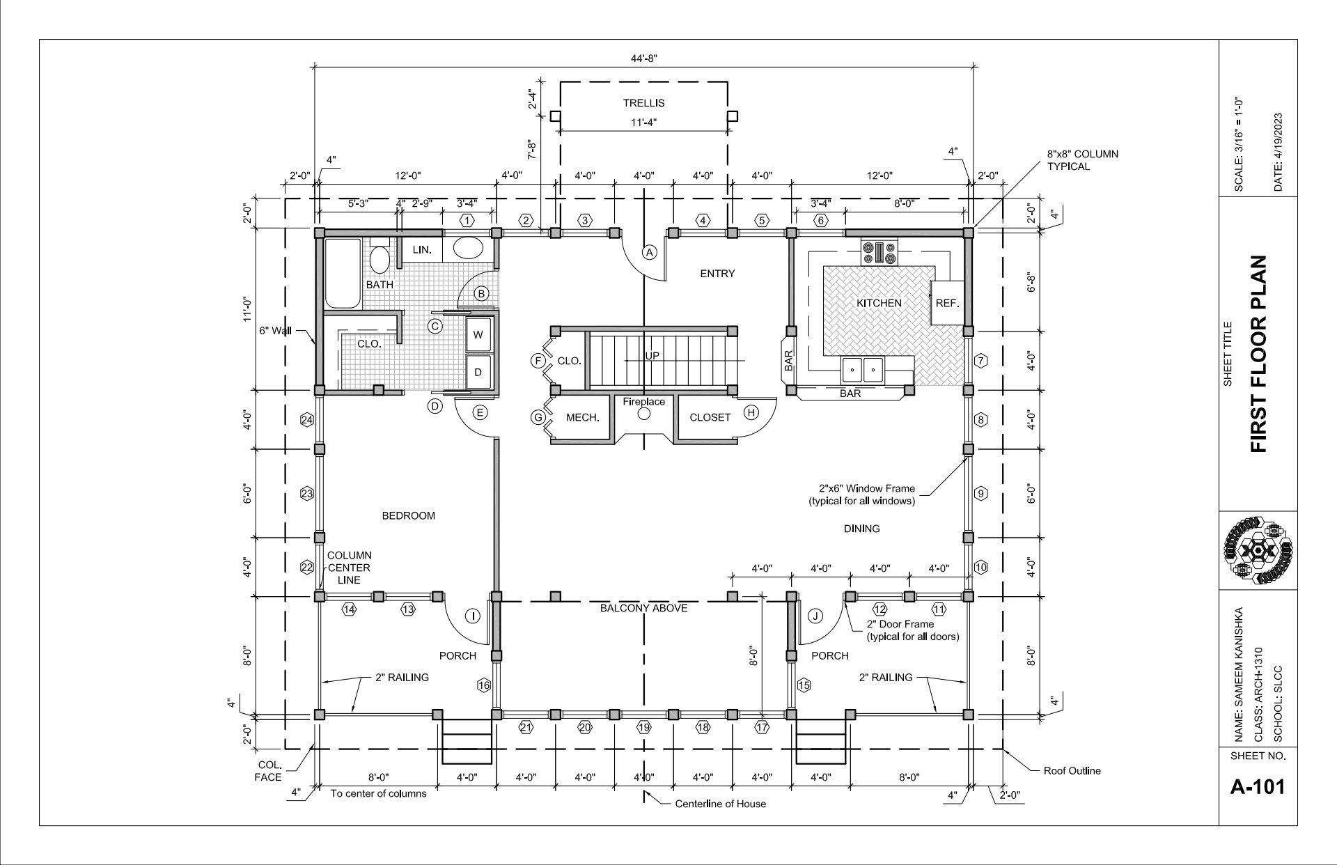
In architecture/engineering, drafting plans and elevations is the foremost method of visualizing designs. Knowing how to draw, read, and assemble construction documents, as well as understanding the universal conventions for denoting elements is paramount.


Much like literature, a good set of plans should be coherent (that is, able to be understood by everyone) and beautifully eloquent. Expertise in this regard prevents structural damage, financial damage, and project delays. This course teaches all of this using AutoCAD as the medium.

PROJECT THESIS:

Because this was NOT a design course, the plans were furnished by the instructor. I was simply tasked with reproducing them using the techniques that were taught, and joining them together into a single unit. All while following conventions and ensuring ubiquitous readability. Each page was drafted by me. I had already used AutoCAD for several years prior to this course; thus, I know the more advanced tricks that result in quicker and accurate plans.