-—- || SAMPSON ISAFI || -—-

~LIVING ROOM REMODEL~

-2024-

BACKGROUND:

Interior design is the art and science of creating indoor spaces that are functional and aesthetic. It requires understanding the needs and desires of the people who will be using a space. Hence, communication and teamwork is key.


Elements (color, light, etc.) and principles (proportion, scale, etc.) are the tools and theories respectively that are employed in the creation of marvelous, practical interiors.

PROJECT THESIS:

In order to test for competency of the above, the final assessment of this course requires redesigning a space for a client of our choosing. In my case, it involved remodeling a living room with spatial issues to better accommodate heavy usage by guests.

————————————————

STEP 1 – CLIENT INTERVIEW

————————————————

REFLECTION:

In interviewing the client, I came to realize that it would simply not be possible to accommodate all of their wants and needs within the scope of the space. Instead, a balance must be struck of what they hope to accomplish with what will still leave the space usable and uncluttered. As is often the case in design.


In order to best achieve this equilibrium, I will need to consider creative alternatives that could satisfy the problem statement or bypass it altogether. All while still implementing the principles and elements of design to achieve the particular style I am going for.

——————————————

STEP 2 – PRESENTATION

——————————————

REFLECTION:

The Design Process was discussed in Modules 1 and 6 as a type of critical thinking and problem solving. Referring to your problem statement from the Client Profile and the Design Program, talk about how you applied it to solving the problems for your client in this project. Did you meet your client’s goals? Why or why not. Can you use the Design Process to solve other types of problems in your life that aren’t design related? (Recall the parts of the design process are analysis, synthesis and implementation). Please give an example.


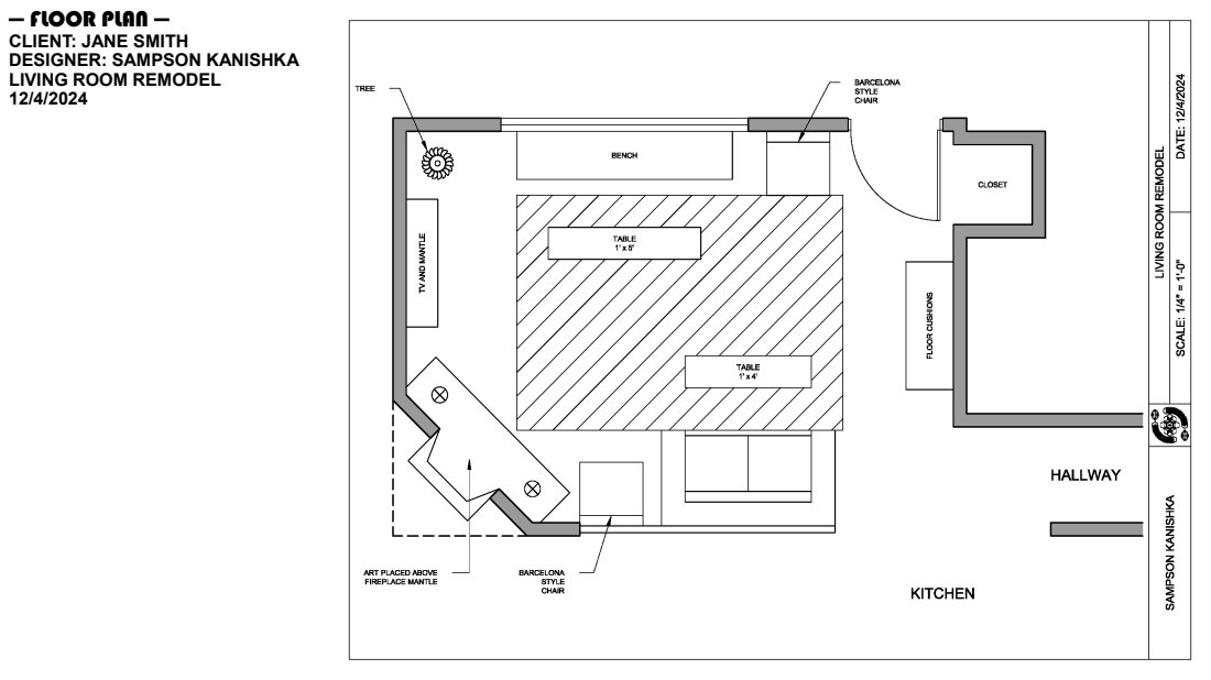
The primary issue my client had was seating space. Spatial problems of this nature have an equilibrium solution; in this case, balancing seating with functionality. In my initial site analysis, I was able to determine where space was being lost. Then, as part of my synthesis, I researched alternatives to large scale sofas and sectionals. Finally, I implemented it in my floor plan, clean and organized. As comparison, the current arrangement is constricted, while still only having room for six individuals. My design has room for nine individuals (three on the bench, two on the chairs, sofa, and floor cushions). A 50% increase. It also avoids clutter and maintains a streamlined path through the middle of the space (which would otherwise be blocked by using a traditional central table).


To critique, the foremost shortcoming of my plan is communication. By using two separate tables, it disjoints the space, which is unintuitive for holding a conversation. This was an element I parted with so as to improve seating and movement.


Ultimately, I did meet my client’s goals, fashionably and functionally.


The design process can also be used to unravel challenges in other disciplines. For instance, mathematics. When confronted with a math problem, the first step is to understand the premise (analysis). Then, to consider the nature of the solution and the deductive paths that lead to it (synthesis). Finally, implementation by way of actually deriving the solution. The best proofs in math are extremely elegant and clever, just like exceptional design.