-—- || SAMPSON ISAFI || -—-

~SANDY LIBRARY REMODEL~

-2024-

BACKGROUND:

During my time working at the Sandy Library, I learned that the building was scheduled to be remodeled some time in the future. Knowing this, I approached my supervisor and asked to undertake a project to draft a theoretical remodel under the notion that it would be helpful, not only for me, but for her and the library manager as well.

SYNOPSIS:

Over the course of several months, I gathered information about the current layout from my supervisor and manager; I also used an employee survey to assemble the opinions and ideas of my coworkers. All of this was used to write a report detailing the problems faced.


Then, I received guided tours of newer library branches in the system. I took note of my observations and used them to write a second report detailing solutions to the first report.


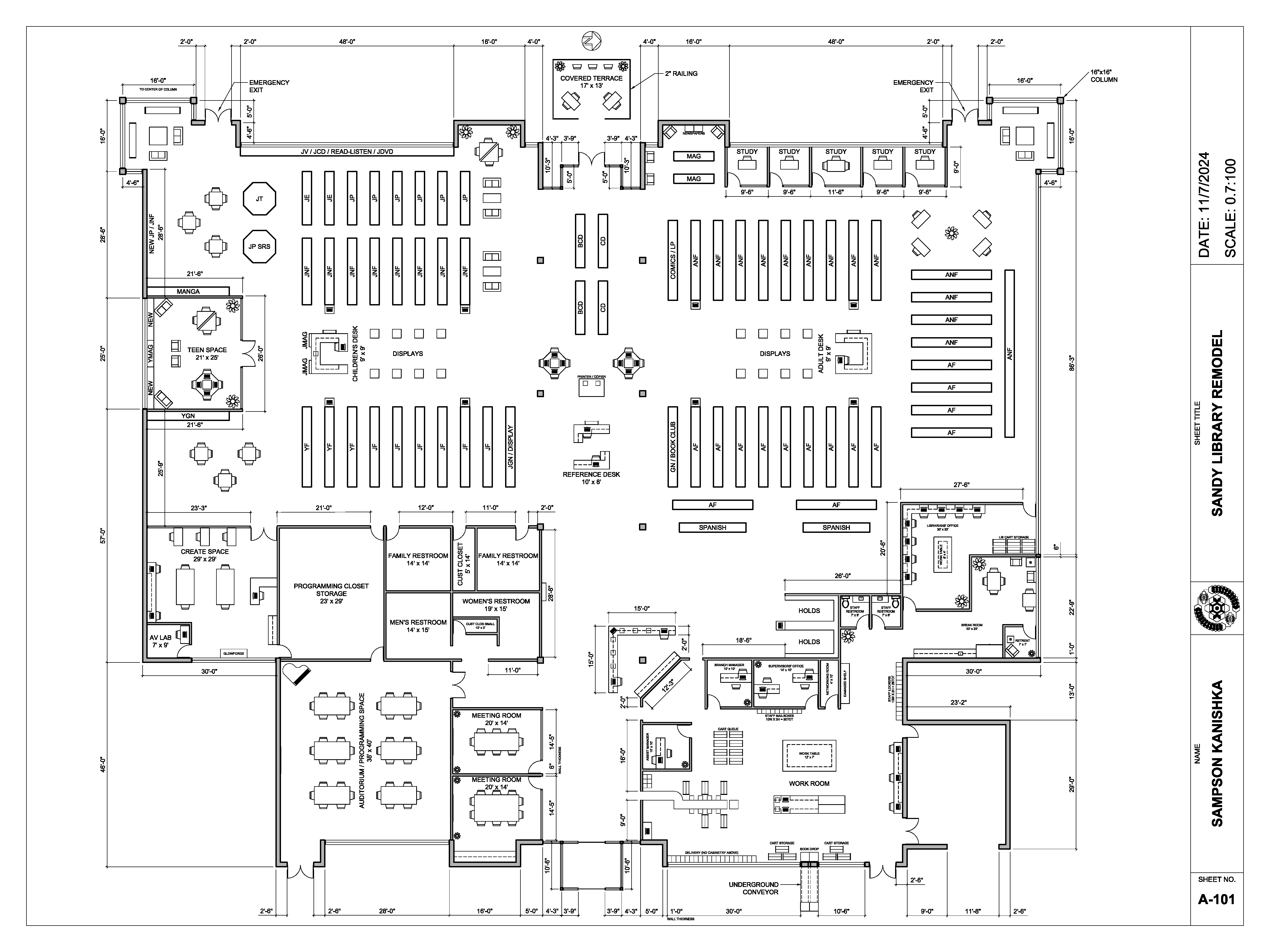
Finally, I implemented these solutions into a remodeled floor plan. Because I did not have any construction documents for the current scheme, I had to measure everything by hand, including all the dimensions of the building.